di Andrea Muzio, Politecnico di Milano
La riqualificazione della scuola secondaria di primo grado Enrico Fermi di Torino, il cui impianto originale è stato progettato nel 1965 dagli architetti Augusto Romano e Sergio Nicola, fa parte di un più ampio progetto volto al miglioramento dell’ambiente educativo italiano. L’operazione rientra nell’iniziativa chiamata Torino fa Scuola, promossa da Fondazione Agnelli e Compagnia di San Paolo, in collaborazione con Città di Torino e Fondazione per la Scuola.

A vincere il bando, indetto nel 2016, è stato lo studio torinese Bdr Bureau, che amplia l’istituto e lo ripensa sia a livello funzionale sia estetico. Prima dell’intervento, infatti, l’edificio era caratterizzato da uno stile costruttivo tipico dell’era del boom edilizio, con spazi ampi e consoni all’insegnamento, le cui potenzialità non erano però sfruttate appieno. Gli architetti Alberto Bottero e Simona Della Rocca, in conformità a quanto richiesto, hanno introdotto novità nell’ambito didattico, proponendo un modello pedagogico più dinamico e rendendo il luogo scolastico un riferimento per la comunità locale.
Zona centrale
L’atrio, area centrale del progetto, raccoglie e organizza gli ingressi alle diverse funzioni. Da questa area è possibile accedere a servizi aperti alla popolazione situati al piano terra: palestra, caffetteria e biblioteca con auditorium. Anche lo spazio aperto esterno all’edificio è ripensato dai progettisti per poterne promuovere un maggiore utilizzo collettivo. Tutto questo trasforma la scuola in un centro per la città, e realizza così il concetto di community school, dove la comunità è stimolata a partecipare e diventare parte integrante del processo di fare scuola.


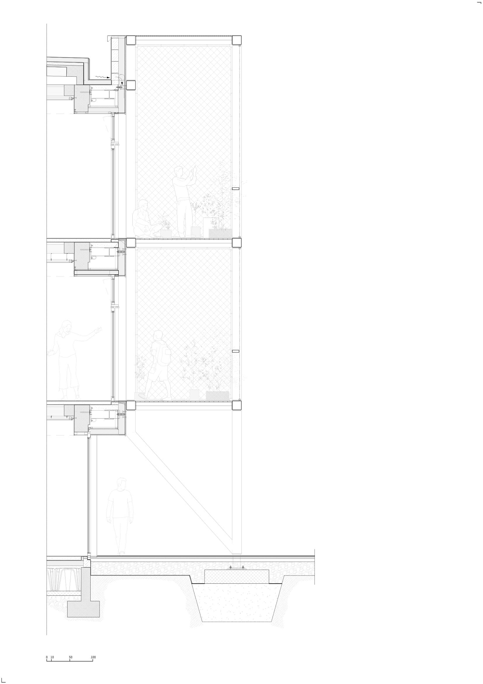
I due piani superiori sono destinati alle attività educative: le classi e i laboratori sono organizzati in cluster, mentre l’atrio diventa spazio di insegnamento informale. Anche le terrazze, che garantiscono una connessione diretta tra aule e cortile, sono concepite come parte integrante della didattica. Queste sono chiuse da una rete metallica, mentre il resto delle facciate si sviluppa alternando ampie vetrate a una muratura trattata con intonaco di granulometria variabile, che genera giochi di diversa profondità.
Rinnovamento
I giovani progettisti hanno sostituito lo stile architettonico dell’edificio, ormai superato, con un design elegante e moderno in cui nessun elemento risulta superfluo, con una spiccata sensibilità nell’utilizzo dei materiali. Le ampie vetrate garantiscono spazi luminosi e un’ideale connessione tra spazio interno ed esterno, enfatizzata dalla permeabilità visiva delle reti metalliche.
L’utilizzo di un modulo per le nuove strutture in acciaio sviluppa, al contempo, una facciata semplice e lineare. La distribuzione funzionale all’interno del progetto risulta altrettanto interessante: l’inserimento di servizi per i cittadini al piano terra modifica l’idea standard di edificio per l’istruzione, promuovendo una realtà più viva e interattiva. Gli spazi delle terrazze e la zona dell’atrio per l’apprendimento informale favoriscono, inoltre, la sperimentazione di metodi didattici alternativi.

In sintesi, nonostante l’ampio utilizzo del colore bianco negli spazi interni, che tende a rendere l’ambiente impersonale, il progetto introduce diversi aspetti innovativi nell’architettura delle strutture scolastiche. Bdr Bureau è in grado di sviluppare un efficace modello, che promuove una riflessione sugli aspetti culturali e pedagogici legati agli spazi volti all’istruzione e al miglioramento della vita comunitaria.

LA SCHEDA
Progetto: BDR Bureau (Alberto Bottero e Simona Della Rocca) – www.bdrbureau.com
Pubblicazione bando: 2016
Fondi stanziati: 7,7 M €
Inaugurazione scuola: 12 settembre 2019
Nell’immagine di copertina: vista dell’entrata principale. © Simone Bossi









