di Gerardo Semprebon, Shanghai Jiao Tong University – Politecnico di Milano
A Taichung, la terza città di Taiwan, lo studio di architettura Woha ha recentemente concluso la realizzazione dello Skygreen, un edificio a uso prevalentemente residenziale commissionato cinque anni fa dal gruppo Golden Jade, con l’obiettivo di costruire un vero e proprio bosco verticale nel cuore della città.

Il progetto si inserisce nella scia di una serie di iniziative incentrate sul tema della sostenibilità battezzate Getaway Project Masterplan. È in questo contesto che la partecipazione di Woha, con la mostra Breathing Architecture nel 2012, ha gettato le basi di un fecondo sodalizio tra governo locale, mondo della professione e mondo accademico che culmina con questo progetto.
L’ideazione ha seguito criteri strutturali antisismici e ha adottato strategie di controllo climatico adatte all’ambiente subtropicale di Taiwan, con particolare attenzione all’azione dei tifoni. Situato in un’area densamente costruita, il lotto di progetto è delimitato da una maglia stradale regolare e si affaccia, sul lato nord, su una delle arterie principali di Taichung, Gongyi Road.
Articolazione compositiva
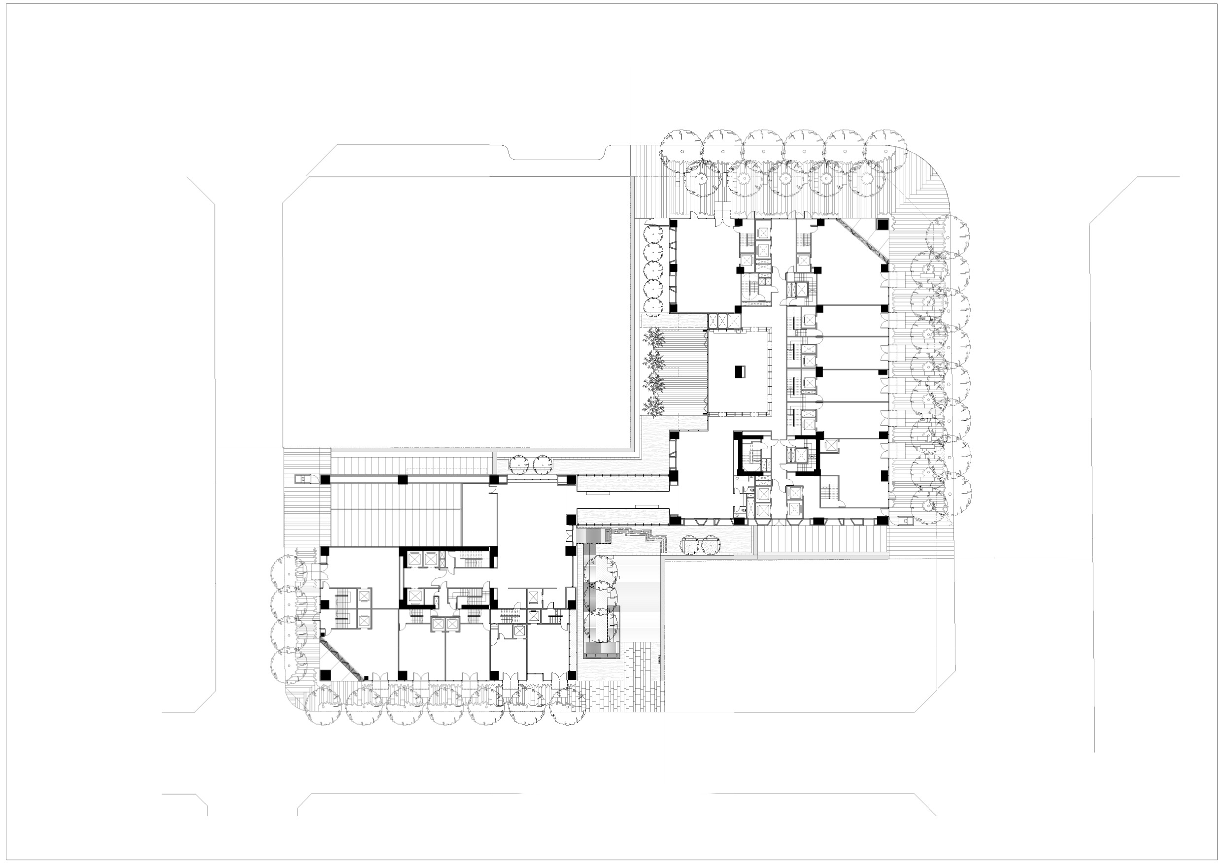
La volumetria insediata si divide in due torri, che a loro volta presentano un’interessante articolazione compositiva. I primi tre piani, che ospitano spazi commerciali e i servizi accessori alla residenza, cercano una relazione forte con il disegno degli spazi aperti e delle aree di pertinenza. Mentre 182 appartamenti sono distribuiti nei 26 livelli delle due torri, a partire dal quarto fuori terra.

Il progetto ripropone il canonico tema della tripartizione dell’edificio (basamento, corpo, coronamento) mantenendo una chiara identità materica e giocando sui rapporti tra le campiture opache e quelle trasparenti, rispettivamente i tamponamenti e le aperture. Il gioco tra regolarità e variazione assume un ruolo chiave nella definizione delle facciate, e si ripresenta costante nelle parti principali del progetto. Per esempio, l’introduzione delle terrazze ogni cinque piani che sono disegnate con geometrie diverse per creare boschi verticali, concepiti come giardini a cielo aperto, ma riparati.
Verde indotto
In un contesto dove l’assenza di vegetazione costituisce un fattore di criticità, l’uso diversificato del verde (molti balconi servono a ospitare solo piante e non persone) conferisce unicità all’edificio e, trascendendo la scala dell’architettura, diventa elemento di landscaping urbano. Lo si evince anche dalla lettura dei prospetti i quali, pur presentando un impaginato rigido, risultano movimentati dalle strombature delle finestre.

Gli elementi che determinano le facciate sono pensati per garantire un’adeguata schermatura solare e utilizzare il verde come elemento di filtro tra interno ed esterno. Simili rapporti sono rintracciabili inoltre nell’organizzazione delle piante, che pur mantenendo alcune configurazioni costanti, risultano variate nelle due torri in virtù innanzitutto di un sistema di distribuzione opposto, centrale e unico in un caso, laterale e doppio nell’altro.
Lo Skygreen integra sia elementi ereditati dalla tradizione locale, perlopiù a livello di organizzazione planimetrica, che strategie architettoniche nuove per Taichung, come l’uso diversificato del verde, assumendo un ruolo pioneristico nella cultura architettonica locale. Uno degli aspetti più intriganti consiste sicuramente nel generoso uso di spazi condivisi dedicati ai residenti, con particolare riferimento alle terrazze. Quanto e come questi elementi saranno utilizzati dagli abitanti costituisce elemento di interesse in relazione a possibili ulteriori declinazioni nei progetti futuri.
LA SCHEDA
Skygreen
Luogo: Taichung, Taiwan
Committente: Golden Jade Construction & Development Corp
Progetto: WOHA – www.woha.net
Fine lavori: 2019
Area di progetto: 4.597 mq
Superficie costruita: 61.026 mq
Foto: Koumin Lee






