Sistemi costruttivi e architettura nella Casa Museo Antonio Gramsci

La Casa Museo Antonio Gramsci a Ghilarza è stata ampliata con un intervento contemporaneo sobrio e rispettoso, capace di dialogare con l'edificio storico. Nuovi spazi, memoria e paesaggio s'intrecciano rendendo vivo il pensiero gramsciano

Antonio Gramsci è stato un grande italiano, i suoi scritti sono delle illuminanti riflessioni sui principi cui ispirare una società più democratica e più giusta. Ha pagato a caro prezzo le proprie idee vivendo una vita dura, funestata da problemi di salute, di indigenza e di privazione della libertà.

Forse il periodo più  sereno della sua travagliata esistenza lo ha trascorso tra il 1898 e il 1911, nella casa dove la sua famiglia viveva a Ghilarza in provincia di Oristano.

Ci tornò più volte negli anni seguenti, di ritorno dai suoi febbrili peregrinaggi fra Torino, Roma, la Russia, Vienna e di nuovo Roma, dove iniziò la sua definitiva discesa agli inferi con un lungo periodo di carcerazione, durante il quale fu trasferito in vari istituti penitenziari, che lo portò alla morte nel 1937.

Corte interna rivestita in lastrame di basalto di Arci
Corte interna rivestita in lastrame di basalto di Arci

Memoria e territorio

La casa di Corso Umberto I, posta nel centro storico di questo paese del territorio del Guilcer, ha un aspetto dignitoso e solido, costruita in blocchi di basalto intonacato a calce, come molte abitazioni di quest’area della Sardegna.

La pietra è rimasta in vista solo nei dettagli che riquadrano le bucature e nell’attacco a terra. Le varie ristrutturazioni che si sono succedute (la più rilevante negli anni ‘60 quando il Partito Comunista Italiano la comprò per farne un centro culturale e poi una Casa Museo) non hanno alterato la struttura originaria e ancora oggi si respirano le atmosfere tipiche di uno spazio domestico.

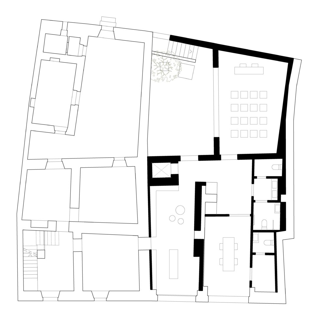
Al nucleo originario, fatto di 6 vani posti su due piani, sono state annesse, sul lato destro, due abitazioni contigue sulle quali, essendo prive di vincolo storico spazi con maggiore libertà.

Incaricato per redigere il progetto di complessiva valorizzazione del compendio è stato lo studio Lerua, fondato nel 2017 da Fabiana Ledda e Paolo Russo con base a Sassari.

I progettisti, prima di tutto, hanno lavorato con il comitato scientifico sul layout funzionale. Nell’edificio posto sul fronte principale, di fatto svuotato mantenendo solo l’involucro in pietra, si è deciso di inserire la reception, un blocco servizi, un piccolo ascensore e una libreria.

Al secondo piano, spazi per esposizioni temporanee e postazioni multimediali. Lerua ha proposto la parziale demolizione del corpo di fabbrica presente sul retro, in affaccio su una strada secondaria.

Il terrazzo con il grande portale verso il paesaggio del Guilcer
Il terrazzo con il grande portale verso il paesaggio del Guilcer

Questa azione ha permesso di realizzare un nuovo volume che a piano terra risulta essere destinato a sala convegni, al piano primo a terrazzo che termina con un grande portale che si affaccia sul paesaggio.

In questo modo è stata creata una stretta relazione fra gli spazi interni e il territorio circostante che più volte Gramsci ha riecheggiato nei propri scritti carcerari.

Dettaglio del rapporto fra nuovo ed esistente
Dettaglio del rapporto fra nuovo ed esistente

Contemporaneo discreto

Il nuovo volume si denuncia, anche all’esterno, con forme volutamente contemporanee ma lo fa sempre in modo discreto ed educato. Grazie alla sensibilità dei progettisti, i nuovi elementi trovano il modo di dialogare con l’esistente.

Emblematico l’approccio tenuto nell’inserimento del nuovo muro di cinta che delimita la corte interna, e del grande portale del terrazzo che riquadra, come una asciutta cornice, il paesaggio del Guilcer.

Le nuove masse murarie, abbaglianti nel loro liscio candore, si appoggiano in modo lieve alle originarie lasciate a vista, scure e disomogenee, attutendo il contrasto con un profondo scuretto.

Spazi interni delle Casa Museo
Spazi interni delle Casa Museo

La Casa originaria, adeguata sotto il profilo impiantistico e semplicemente manutenuta, negli elementi di finitura, resta intatta nella configurazione degli spazi, ospita un viaggio narrativo che si svolge attraverso l’infanzia, l’adolescenza e il periodo universitario a Torino, durante il quale l’intellettuale sardo si affaccia all’impegno politico e alla scrittura.

Non vi sono esposti materiali eclatanti; i manoscritti originali sono conservati, in massima parte, presso la Fondazione Gramsci di Roma, ma grazie ad alcuni oggetti, alle immagini e ai suoni del vasto archivio multimediale, oltre alla presenza di un ampio spettro di pubblicazioni, liberamente consultabili e acquistabili, la casa riesce a mostrarci compiutamente la genesi e l’evoluzione del pensiero Gramsciano.

Gli spazi vengono costantemente frequentati grazie a un fitto cartellone di eventi mantenendo sempre vive le parole del fondatore dell’Unità.

La piccola doppia altezza in corrispondenza del nuovo ingresso
La piccola doppia altezza in corrispondenza del nuovo ingresso

Il bianco che unisce

Il bianco delle pareti a calce rimane un lietmotiv sia negli interni della casa che nell’estensione. Viene invece marcata la differenza nei pavimenti che, nell’ampliamento, prevedono l’introduzione di tavole in legno di larice chiaro. Tale essenza la ritroviamo anche negli arredi integrati e nelle teche.

Le pavimentazioni esterne, del cortile e del terrazzo, vengono trattate in lastrame ricavata dalla pietra basaltica locale tipica delle cave del Monte Arci.

Questo piccolo gioiello, fatto di cose minute e poco appariscenti, ci mostra un’altra Sardegna lontana anni luce dalla Vita Smeralda che ci racconta Jerry Calà nel suo film del 2006, pellicola imbarazzante nella propria dozzinale fattura ma a suo modo emblematica nel rappresentare cosa sia diventata una parte dell’isola dei nuraghe.

Fabiana e Paolo, attraverso il loro lavoro di architetti, ci parlano invece di fatica, di povertà ma anche di grande orgoglio e di riscatto raggiunto tramite la forza del pensiero.

di Ilaria Bizzo e Stefano Cornacchini

Fabiana Ledda e Paolo Russo | Fondatori dello Studio Lerua
Fabiana Ledda e Paolo Russo | Fondatori dello Studio Lerua

Fabiana Ledda e Paolo Russo | Fondatori dello Studio Lerua

Nel cuore del centro storico di Ghilarza, lungo Corso Umberto I, l’intervento di ampliamento della Casa Museo Antonio Gramsci si è configurato come un gesto silenzioso ma deciso, capace di cucire insieme passato e presente, materia e pensiero. Il progetto ha coinvolto l’edificio originario, dichiarato monumento nazionale, e due unità abitative adiacenti, un tempo distinte, oggi riunite in un unico organismo architettonico.

Un atto di riconnessione che va oltre la semplice somma di spazi, diventando un nuovo paesaggio domestico per la memoria, la riflessione, la ricerca. Nel rispetto della tutela imposta dal dlgs 42/2004, ogni inter vento si è mosso con attenzione quasi chirurgica: il fronte storico sul Corso è stato preser vato come una soglia immobile tra le epoche, mentre sul retro la trasformazione si è manifestata con leggerezza contemporanea.

La parziale demolizione dell’ex sede del Pci e delle unità adiacenti ha permesso l’inserimento di un nuovo volume architettonico, pensato non come contrappunto, ma come eco materica e luminosa della casa natale di Gramsci. Calce e basalto, materiali propri di una tradizione sarda radicata e severa, sono stati reinterpretati con sobrietà e precisione, alternati a superfici vetrate che aprono scorci e riflessi, creando un dialogo costante tra interno ed esterno, tra spazio costruito e paesaggio gramsciano.

Il nuovo complesso accoglie ora una sala per l’accoglienza, una biglietteria, un bookshop, spazi espositivi e una sala polifunzionale, oltre a luoghi pensati per il lavoro, la lettura, la condivisione. La Casa Museo, cuore pulsante del progetto, ospita un percorso narrativo che si snoda tra infanzia, adolescenza e pensiero, conser vando intatta l’aura del luogo originario. Qui ogni dettaglio, una soglia in pietra, una finestra, un corridoio, diventa par te di una grammatica discreta della memoria.

La scheda

Committente: Unione Comuni del Guilcer (Or)
Progetto: Studio Associato di Architettura Lerua (arch. Paolo Russo, arch. Fabiana Ledda), arch.
Riccardo Onnis, arch. Fabrizio Rubattu
Strutture, impianti elettrici, meccanici e acustica: Mb Engineering
Impresa edile: Dueffe srl
Realizzazione: 2021- 2025
Foto: Aldo Amoretti

Lascia una risposta

L'indirizzo email non verrà pubblicato.