Gate Central Milano: rigenerazione a Porta Ticinese tra archeologia, sostenibilità e sistema costruttivo Ytong

Promosso da Gruppo Building e progettato da Acpv Architects con direzione lavori Boffa Petrone & Partners. Si ricuce il tessuto di Porta Ticinese con un intervento residenziale ad alta complessità tecnica, tra tutela archeologica, innovazione costruttiva e sostenibilità energetica.

Gate Central, realizzato da Gruppo Building è un intervento di rigenerazione urbana che recupera il tessuto storico di Porta Ticinese. Il progetto integra residenze e spazi commerciali con la valorizzazione dello spazio pubblico e il dialogo con il patrimonio monumentale di Milano, restituendo alla città un’area incompleta dal secondo dopoguerra.

La progettazione e riqualificazione sono state affidate a Acpv Architects Antonio Citterio Patricia Viel, con la direzione lavori dello studio Boffa Petrone & Partners.

L’intervento è stato cofinanziato tramite la piattaforma di equity crowdfunding Concrete Investing, raccogliendo 2,5 milioni di euro e offrendo agli investitori un Roi del 27% in 27 mesi, anticipando di quattro mesi la scadenza prevista.

Dove ci troviamo

Il complesso residenziale sorge a pochi passi dal centro di Milano, di fronte alle Colonne di San Lorenzo e all’omonima Basilica, unendo innovazione architettonica e rispetto del patrimonio storico.

Il progetto valorizza la memoria storica del sito e riabilita uno spazio urbano di alta qualità.

La presenza del colonnato romano ha richiesto uno studio approfondito che ha rallentato di pochi mesi i lavori, eseguiti in stretta collaborazione con la Soprintendenza Archeologia, Belle Arti e Paesaggio, che ha seguito tutte le fasi, dal concept agli scavi fino alla realizzazione.

Il cantiere del Gate Central, di fronte alle Colonne di San Lorenzo e all’omonima Basilica
Il cantiere del Gate Central, di fronte alle Colonne di San Lorenzo e all’omonima Basilica

Progetto

L’edificio, circondato da spazi aperti al pubblico, si sviluppa su 1.700 m² di superficie lorda, distribuiti su quattro piani fuori terra e due interrati destinati ad autorimessa.

Il progetto, che integra residenze e spazi commerciali, ha riqualificato l’area circostante, ricostruendo il tessuto storico antistante le Colonne di San Lorenzo.

Particolare attenzione è stata dedicata a design senza tempo, tecnologia, innovazione e risparmio energetico: tutte le unità sono in classe A4.

La cortina degli edifici prospicienti il colonnato e la selezione dei materiali di facciata e pavimentazioni esterne conferiscono all’intervento un aspetto armonico, in linea con la tradizione milanese.

Gate Central
Gate Central, Milano

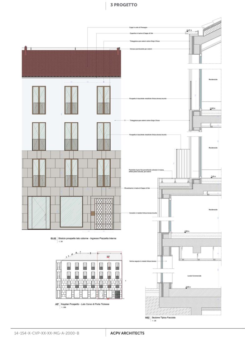
La facciata presenta imbotti in ottone che incorniciano le aperture, il basamento in Ceppo di Gré e la copertura in coppi di cotto di Possagno completano il dialogo con il contesto urbano e la preesistenza monumentale.

Elemento centrale è la corte interna, concepita come piazza pubblica e nuova via pedonale tra via dei Fabbri e Corso di Porta Ticinese, ripristinando i percorsi storici e creando spazi verdi e pedonali che colmano la frattura urbanistica post-bellica.

La pavimentazione, raccordata con la piazza della Basilica, è arricchita da inserti in ottone che richiamano i resti romani rinvenuti.

L’accesso alle residenze avviene tramite un volume vetrato che illumina lo spazio pedonale; sedute e verde favoriscono la socialità e la biodiversità, enfatizzando la variazione stagionale del paesaggio urbano.

Gate Central
Gate Central, Milano

Materiali

Il progetto, realizzato in stretta collaborazione con la Soprintendenza, ha previsto l’utilizzo di diverse tipologie di materiali, tra cui:

  • Ceppo di Gré, lastre di varie dimensioni, stuccato e levigato, per il rivestimento del basamento e dei prospetti fino al secondo piano fuori terra;
  • Vetus marmorino, colore sabbia di campo, per il rivestimento della facciata al secondo e terzo Si tratta di uno stucco minerale traspirante, liscio ad effetto opaco, in polvere, composto da calce pozzolanica, polveri di pietra e sabbie calcareo-silicee;
  • Ottone brunito cerato naturale per il rivestimento della facciata laterale, i serramenti e gli imbotti in lamiera;
  • Coppo rosso di Possagno per il manto di copertura;
  • VmZinc pigmento brown, zinco laminato in lega di rame e titanio, per l’abbaino e le superfici piane di copertura;
  • Granito di Montorfano e serizzo per il rivestimento della nuova piazza interna.
Gate Central
Gate Central, Milano

Il cantiere

Analisi preliminari

Nel corso del 2015 sono state eseguite indagini ambientali preliminari, che hanno rilevato la presenza di metalli pesanti (piombo in primis, rame e zinco) nei terreni di riporto fino a una profondità di 4,5 metri, rendendo necessaria una conseguente fase di bonifica.

Prima dell’inizio dei lavori, sono state inoltre effettuate analisi sullo stato di consistenza degli edifici attigui al lotto, con l’obiettivo di verificare l’eventuale presenza di danni strutturali o fessure preesistenti.

Gate Central
Gate Central

Bonifica

Nel corso del 2018 il sito è stato oggetto di un intervento di bonifica, che ha previsto la rimozione delle matrici insature contaminate, il loro conferimento presso gli impianti di smaltimento e la realizzazione di opere di sostegno perimetrali.

Il terreno è stato inoltre messo in sicurezza per consentire la costruzione della linea metropolitana M4, prima del passaggio della talpa per lo scavo.

Per preparare il terreno è stato rimosso uno strato superficiale di macerie di circa un metro, al fine di agevolare le indagini e creare un piano di lavoro stabile.

Una volta pulito, sono stati eseguiti rilievi per individuare eventuali ordigni bellici inesplosi.

Per le facciate sono state posate lastre in pietra Ceppo di Grè, il Vetus Marmorino e l’ottone brunito.
Per le facciate sono state posate lastre in pietra Ceppo di Grè, il Vetus Marmorino e l’ottone brunito.

Scavi

Per la realizzazione degli scavi, eseguiti dal Gruppo Building, sono stati movimentati 4.797 m³ di terreno, con lo smaltimento di oltre 9.700 tonnellate di materiale contaminato e 1.550 tonnellate di macerie da demolizione, prestando particolare attenzione al patrimonio artistico.

Per garantire la stabilità dei fronti di scavo durante bonifica e costruzione, sui lati nord, ovest e sud del sito è stata installata una palificazione di tipo berlinese, costituita da pali metallici di diversi diametri, ravvicinati e riempiti con impasto fluido di cemento.

Sono stati utilizzati pali più grandi, perforati a elica, diametro 80 cm, lunghezza 12-13 m, disposti con interasse di 95 cm, con due ordini di puntoni a -2 e -1,2 m dal piano stradale. Nei punti critici sono stati impiegati pali più piccoli (275-300 mm).

Lungo Corso di Porta Ticinese sono stati posati micropali diametro 40 cm, lunghezza 12 m, interasse 50 cm, con un ordine di puntoni a -1,7 m.

Tutti i pali sono stati com-pletati con un cordolo in cemento armato sulla sommità. Durante gli scavi, a 2,5 e 3,7 m di profondità, sono stati rinvenuti resti archeologici romani, con ispezione di 689 m² caratterizzata da una stratigrafia complessa.

Per il rivestimento della pavimentazione della corte interna sono state posate delle lastre in granito di Montorfano e del serizzo
Per il rivestimento della pavimentazione della corte interna sono state posate delle lastre in granito di Montorfano e del serizzo

Struttura di sostegno del muro romano

Durante la realizzazione degli scavi è stata necessaria una struttura in acciaio per sostenere il muro romano, collocato a 1 m dalla paratia e con sezione di 60×90 cm, per un peso stimato di circa 15 kN/m.

Sono state utilizzate travi verticali Heb200, disposte a interasse variabile di 1,5–2 m e fissate alle paratie in due punti (cordolo di sommità e pali).

Tre profili Hea160 hanno garantito l’appoggio longitudinale lungo tutta l’impronta del muro. Durante il montaggio sono stati impiegati puntelli e strutture provvisorie.

Realizzazione dello scavo eseguito dopo le indagini preliminari e la bonifica
Realizzazione dello scavo eseguito dopo le indagini preliminari e la bonifica

Fondazione e solai interrati

La fondazione dell’edificio, una platea in cemento armato, è stata realizzata alla profondità di 9,2 m dal piano stradale.

Al termine della costruzione della fondazione e dei solai interrati sono stati rimossi i vari ordini di puntoni metallici (aventi un diametro di 813 mm) messi in opera durante le operazioni di scavo.

Realizzazione dello scavo eseguito dopo le indagini preliminari e la bonifica
Realizzazione dello scavo eseguito dopo le indagini preliminari e la bonifica

Sistema costruttivo

Per la realizzazione di Gate Central, lo studio Boffa Petrone & Partners ha scelto il sistema costruttivo completo Ytong, impiegato sia per l’involucro esterno sia per le tramezze interne.

La scelta è ricaduta sui blocchi Ytong, caratterizzati da struttura porosa e peso ridotto, garantendo solidità, resistenza meccanica e facilità di lavorazione in cantiere, oltre a una maggiore semplicità di taglio.

Per l’involucro esterno sono stati utilizzati blocchi in calcestruzzo autoclavato Ytong Climagold (62,5×20×48 cm), maschiati, ecosostenibili e traspiranti, ideali per tamponamenti monostrato ad alto isolamento termico.

Prospetto e sezione del Gate Central con indicazione dei materiali di finitura
Prospetto e sezione del Gate Central con indicazione dei materiali di finitura

Per le tramezzature interne è stato impiegato il blocco Ytong Y-PRro, posato a giunto sottile, che ha permesso pareti perfettamente planari e l’agevole realizzazione delle tracce impiantistiche senza danni.

I ponti termici sono stati gestiti con lana minerale Multipor, pannello isolante in idrati di silicato di calcio prodotto da materie prime naturali (sabbia, calce e acqua) con aggiunta minima di cemento e additivi porizzanti.

Multipor è leggero, traspirante, salubre, incombustibile (Euroclasse A1) e altamente poroso (>95%), garantendo isolamento termico invernale ed eccellenti prestazioni energetiche estive, senza fibre nocive o materiali sintetici, rendendo il cappotto sano e inattaccabile dagli insetti.

Le pareti in calcestruzzo armato sono state realizzate in cantiere a piè d’opera utilizzando il sistema banches, una casseratura metallica reimpiegabile costituita da pareti, elementi distanziatori e strutture esterne di contenimento.

Le superfici delle casseforme sono state fissate tramite staffe distanziatrici che attraversano le pareti opposte e immobilizzate esternamente con cunei.

Messa in opera del primo ordine di puntoni collocato a -1,7 metri dal piano stradale
Messa in opera del primo ordine di puntoni collocato a -1,7 metri dal piano stradale

Gli elementi componibili sono dotati di sistemi di fissaggio rapido a passo modulare, con bullonature e incastri già predisposti per i distanziatori, garantendo movimentazioni agevoli e accelerando i tempi di cantiere.

Tutte le superfici di contenimento sono state trattate per assicurare impermeabilizzazione, durabilità e facilità di montaggio e smontaggio.

Il vantaggio di questa tecnica risiede nella velocità esecutiva: il disarmo avviene generalmente il giorno successivo al getto e la modularità dei pannelli di armatura ne consente il riutilizzo seriale su elementi simili (per esempio, pilastri, vani scala), incrementando ulteriormente la produttività in cantiere.

Realizzazione della palificazione berlinese e messa in opera dei puntoni
Realizzazione della palificazione berlinese e messa in opera dei puntoni

Facciate

A piano terra e al primo piano dell’edificio, il fissaggio delle lastre in pietra (Ceppo di Gré) è stato garantito tramite ganci di ritenuta in acciaio inossidabile Raimondi spa Raifix, un dispositivo semplice ed efficace che impedisce la caduta delle lastre in caso di distacco dalla parete.

I prospetti, a partire da piano secondo, sono stati trattati con un ciclo di posa realizzato con materiali Calchera San Giorgio.

Inizialmente è stato applicato un fondo Silfix, ancorante silossanico trasparente a diluizione acquosa, ad alto potere isolante.

Realizzazione della palificazione berlinese e messa in opera dei puntoni
Realizzazione della palificazione berlinese e messa in opera dei puntoni

Successivamente è stata eseguita una rasatura armata con rasante ‘900, malta preconfezionata in polvere, minerale, traspirante, ecosostenibile e bio-compatibile, composta da calce idraulica naturale Nhl 5, aggregati calcareo-silicei, microfibre naturali e additivi migliorativi della funzione reologica.

Infine, dopo l’applicazione della malta di finitura Vetus Marmorino, le facciate sono state completate con un protettivo idrorepellente per la protezione finale delle superfici.

Bow window e serramenti

I bow window, profondi circa 30 cm, sono stati realizzati con una struttura aggettante a sbalzo dalla facciata verso la piazzetta. L’impalcato di calpestio è costituito da quattro profili Ipe80 a sbalzo dall’interno, seguendo uno schema statico a mensola.

Messa in opera dei bow window
Messa in opera dei bow window

I bow window sono rifiniti con serramenti in alluminio a taglio termico, dotati di triplo vetro diviso in due livelli (alto e basso), che garantiscono ampia illuminazione naturale agli ambienti interni.

Per assicurare la tenuta all’aria e all’acqua sono state applicate guarnizioni e sigillature tra i moduli dei bow window.

Le superfici opache superiori e inferiori sono coibentate con pannelli rigidi rivestiti da lastre di Ceppo di Gré spesse 2 cm, con continuità dell’isolamento garantita dal materiale posato tra telaio e muratura.

Infine, sono state inserite una barriera al vapore interna e una membrana impermeabile esterna.

Ytong, involucro performante e sostenibile

Ytong è un materiale da costruzione al tempo stesso leggero e resistente, con naturali proprietà termoisolanti, traspiranti e di resistenza al fuoco (euroclasse A1 incombustibile).

I blocchi e le tavelle Ytong di Xella in calcestruzzo aerato autoclavato sono prodotti con materie prime naturali mediante processi produttivi sostenibili come documentato nel recente Report Esg del Gruppo Xella.

Il sistema Ytong permette di realizzare pareti di tamponamento esterne traspiranti e perfettamente isolate, rispondendo ai requisiti dei più noti protocolli di certificazione di sostenibilità e soddisfacendo elevati parametri di efficienza energetica.

Il sistema costruttivo si completa con il ciclo specifico di malte collanti, intonaci e finiture della gamma Ytong, coerenti per composizione e complementari per caratteristiche, permettendo di ottenere le migliori performance.

Realizzazione della struttura dell’edificio
Realizzazione della struttura dell’edificio

Strategia impiantistica

Impianto di climatizzazione

L’impianto garantisce riscaldamento invernale e raffrescamento estivo delle unità residenziali e delle aree comuni tramite un sistema Vrf (Variable Refrigerant Flow), che regola il flusso di refrigerante in base al fabbisogno delle diverse zone.

Il sistema, con pompe di calore che sfruttano l’acqua di falda come sorgente termica, trasferisce calore dall’interno all’esterno in estate e viceversa in inverno.

Le unità interne distribuiscono l’aria climatizzata tramite griglie o bocchette a parete, mentre le unità esterne sono collocate nella centrale termo-frigorifera al primo piano interrato.

Impianto di ventilazione meccanica controllata

Il sistema Vmc centralizzato, installato nella centrale termo-frigorifera, distribuisce l’aria in tutto l’edificio tramite canalizzazioni nei controsoffitti.

Dotato di recuperatore di calore, preriscalda l’aria fresca con l’energia dell’aria estratta, migliorando l’efficienza energetica e garantendo ricambio continuo d’aria, comfort e qualità ambientale.

Impianto idrico-sanitario

Una pompa di calore acqua-acqua, collocata nella centrale idrica, produce acqua calda sanitaria a basso consumo, utilizzando l’acqua di falda per riscaldare l’acqua destinata alle unità abitative.

Realizzazione della struttura in elevazione verticale con blocchi Ytong
Realizzazione della struttura in elevazione verticale con blocchi Ytong

Impianto di regolazione e supervisione

Il sistema Bms controlla e ottimizza il funzionamento degli impianti tecnologici, monitorando lo stato, gestendo allarmi e integrando risorse naturali come l’acqua di falda per ottenere un significativo risparmio energetico.

Impianto elettrico

L’edificio dispone di quadri elettrici per la distribuzione dell’energia a tutte le zone (residenziale, commerciale, garage e spazi comuni), progettati per elevati standard di sicurezza, efficienza e funzionalità.

I sistemi di protezione, comprensivi di interruttori automatici, differenziali e dispositivi contro sovratensioni, tutelano l’impianto da cortocircuiti, sovraccarichi e guasti.

Sistemi di sicurezza

Sono stati installati sistemi di messa a terra collegati a tutti gli impianti elettrici e un sistema di rilevazione incendi con sensori di fumo e calore, collegati a un allarme centralizzato nelle aree critiche come l’autorimessa.

Le casserature metalliche banches per la realizzazione delle pareti in cemento armato
Le casserature metalliche banches per la realizzazione delle pareti in cemento armato

Sistemi di automazione e comunicazione

L’edificio dispone di tecnologie avanzate per comfort, sicurezza e risparmio energetico:

  • impianto domotico per controllo di illuminazione, clima e sicurezza tramite pannelli centralizzati o app mobili;
  • rete in fibra ottica per comunicazioni e internet ad alta velocità;
  • sistema di videocitofono centralizzato per gestione accessi da remoto;
  • controllo dei carichi elettrici per monitorare e gestire l’uso di energia nelle unità abitative.

di Valentina Puglisi,
Dipartimento ABC, Politecnico di Milano

Piero Boffa | Presidente Gruppo Building
Piero Boffa | Presidente Gruppo Building

Piero Boffa | Presidente Gruppo Building

Con il progetto Gate Central abbiamo voluto investire in un’opera che valorizza l’ambiente e il contesto circostante, colmando un vuoto urbanistico di decine di anni.

Porta Ticinese è un’area dal grande fascino storico, dove è in corso un processo di rigenerazione urbana che ne farà uno dei centri di maggiore interesse della città.

Antonio Citterio e Patricia Viel | Acpv Architects
Antonio Citterio e Patricia Viel | Acpv Architects

Antonio Citterio e Patricia Viel | Acpv Architects

Il progetto s’inserisce con coerenza nel tessuto urbano circostante, entrando in dialogo con la storia del luogo e rispondendo alle dinamiche contemporanee della città.

La volumetria, la giacitura e la scelta dei materiali rispettano il carattere peculiare del quartiere e restituiscono un edificio pienamente milanese. Grazie a un confronto continuo con la Soprintendenza, è stato possibile affrontare e risolvere in modo positivo tutte le criticità.

Un lavoro di ascolto reciproco che ha dato vita a un progetto che rispetta le esigenze di tutela e valorizzazione del patrimonio, senza comprometterne il valore urbano contemporaneo.

La scheda

Opera: Residenziale di nuova costruzione e aree pubbliche
Fine lavori: 2025
Committente: Gate Central spa
Progetto architettonico e Landscape design: Acpv Architects Antonio Citterio Patricia Viel
General contractor: Building spa
Progetto esecutivo e direzione lavori: Boffa Petrone & Partners Strutture: Macos srl
Pacchetto di finitura tetto e isolamento: Nulli srl
Tamponamenti esterni, intonaci e rivestimenti interni: Cfm Costruzioni srl Impermeabilizzazioni di copertura: Building spa
Rivestimenti lapidei edificio e piazza interna: Sommo Marmi srl Strutture in cartongesso: Asai
Massetti: Mcs
Pavimentazioni interne: Tempini 1921 srl Involucro trasparente e infissi:Vetreria Busnelli srl Serramenti Interni: Ekasa Group srl e Dierre spa
Impianti meccanici ed elettrici: Electric spa
Impianto ascensore interno: TK Elevator Italia spa
Montauto: Tecnolift srl
Opere da fabbro piazzetta interna: Peraria srl Piantumazione aree verdi:Vivaio del Garda Cherubini Valter

Dati dimensionali

Superficie lotto: 1.399 mq
Superficie lorda residenziale: 1.128 m2 Superficie lorda commerciale: 564 m2
Totale superficie lorda: 1.692 m2
Volumetria residenziale: 3.384 m3
Volumetria commerciale: 1.692 m3
Totale volumetria: 5.076 m3
Superficie coperta: 488 m2
Numero piani: 6 piani (4 fuori terra e 2 interrati)
Numero appartamenti: 12 ai piani primo, secondo e terzo (4 per piano) Superficie autorimessa: 549,87 m2
Numero posti auto: 15
Numero cantine: 13 (11 al piano secondo interrato e 2 al primo piano interrato)

Lascia una risposta

L'indirizzo email non verrà pubblicato.