Esempio di riuso tipologico delle case di ringhiera in chiave contemporanea

Nel cuore di Milano, Casa Eurinome, progettata da Degli Esposti Archi­tetti, reinterpreta le storiche case di ringhiera con due corpi di fabbrica articolati, logge profonde e un preciso disegno prospettico. Tradizione, tecnica e sensibilità urbana si fondono in un progetto colto e attuale

Le case di ringhiera sono una delle immagi­ni distintive dell’edilizia storica milanese. Nacquero nel corso del XIX secolo per dare risposta alla crescente esigenza abitativa collegata alla tumultuosa conurbazione di decine di migliaia di ex contadini che trovavano nuovo impiego nella nascente industria manifatturiera.

Sono caratterizzate da ballatoi esterni, con balau­stre e graticci in struttura metallica, che fungono da corridoio comune per accedere alle singole unità abitative. Gli architetti razionalisti, operanti nella città meneghina, affascinati da questa tipologia, la riprendono e reinterpretano.

Esemplari gli edifici per abitazioni progettati negli anni ‘30 da Terragni e Lingeri. Le loro precise geometrie e i sapienti chiaroscuri risultano ancora attualissimi e hanno tracciato un percorso seguito da generazioni di ar­chitetti.

Anche i progettisti di questo intervento. denominato Casa Eurinome, Degli Esposti Archi­tetti, si ispirano dichiaratamente alla lezione dei due maestri lombardi.

Demolizione – ricostruzione

Ci troviamo in via Piero della Francesca in zona Sempione. Il lotto a disposizione, derivante dalla demolizione di un edificio preesistente, ha una forma trapezoidale.

Si trova stretto fra altri palazzi, compatti e incombenti, e limitato da un allineamento stradale non derogabile, vista la sezione limitata della carreggiata.

La nuova volumetria viene sviluppata in due corpi di fabbrica rispettivamente di cinque livelli, sul prospetto stradale, e di sette, nella parte posteriore dell’area, seguendo l’allineamento delle altre parcelle edilizie.

Vista frontale in cui si comprende il gioco anamorfico
Vista frontale in cui si comprende il gioco anamorfico
Schizzo di studio
Schizzo di studio

La parte centrale, un cuneo che ricalibra i disallineamenti del lotto e permette di avere alloggi con margini regolari, funge da elemento distributivo che svincola le varie unità edilizie.

Il corpo frontale accoglie, a ogni piano, due bilocali. In quello posto sul retro, dove è stato collocato l’unico blocco scala/ ascensore, troviamo un bilocale e due trilocali per ogni livello, fino ad arrivare all’ultimo che è stato svuotato realizzando un grande loft open space in parte sop­palcato.

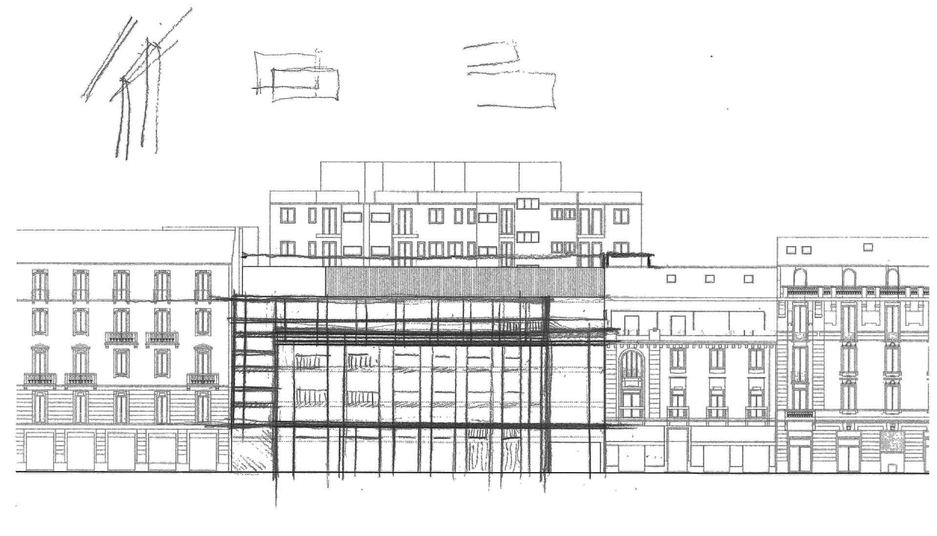
Il fronte principale viene progettato pensando alla visione di scorcio.

Vista da via Piero della Francesca
Vista da via Piero della Francesca

Ritmo verticale

Gli architetti introducono un ritmo verticale che si accorda agli alzati neoclassici dei palazzi contigui. Una teoria di 10 paraste, alte 3 piani, che spiccano da un basamento in pietra e scandiscono 9 fasce di aperture.

Scorrendo l’alzato, da sinistra verso destra, si nota che, sia le parti cieche che le bucature, au­mentano la loro dimensione. Si crea così un gioco prospettico che schiaccia o accelera le proporzioni a seconda che si percorra la strada in un senso o nell’altro.

Le aperture accolgono o delle profonde logge, atte a garantire alle unità abitative una adeguata protezione dal traffico cittadino, o ampi terrazzi privati, collo­cati come cuscinetto rispetto alle proprietà contigue.

Facciata su via Piero della Francesca
Facciata su via Piero della Francesca

Telai metallici in facciata

Il quinto livello si attesta sul filo interno delle logge e viene evocato in facciata da una trama sottile di telai metallici, motivo ricorrente nei progetti di Degli Esposti Architetti, che partono dai parapetti presenti nelle logge inferiori.

In questo modo si introduce una sottomatrice che richiama, allo stesso tempo, le case di ringhiera e anche le decorazioni neoclassiche dei prospetti contigui.

Lo stratagemma è utile anche per mediare la diversa altezza dei due edifici cui Eurinome si pone in continuità, uno di 4 e l’ltro di 5 piani, e ad alleggerire l’impatto nella visione stradale.

La stecca posteriore ha un aspetto più compatto, pur prevedendo una progressiva smaterializzazione negli ultimi due livelli che risultano arretrati dal filo edilizio. La volumetria viene comunque accennata introducendo un pergolato con pilastri e travature in calcestruzzo armato.

Vista del fronte sul cortile
Vista del fronte sul cortile

Struttura tradizionale interni a secco

Sul piano costruttivo il complesso presenta una strut­tura tradizionale che si costituisce di un telaio in calcestruzzo armato tamponato con blocchi in laterizio porizzato da 25 cm.

L’esterno è omogeneamente trattato con cappotto termico, rifinito a grassello colorato in pasta, mentre internamente è presente una contro­parete in cartongesso per il passaggio degli impianti senza incidere sui tamponamenti.

Le pareti divisorie interne sono state realizzate anch’esse con metodica a secco. Gli impalcati consistono in solette piene in cal­cestruzzo armato di spessore variabile a seconda della posizione. All’intradosso sono rifinite con plafoni in cartongesso che creano un piccolo cavedio per il pas­saggio degli impianti elettrici.

All’estradosso troviamo il tipico pacchetto per un impianto radiante: strato di calcestruzzo alleggerito per il passaggio dei corrugati e tubazioni idrotermosanitarie, tappeto anticalpestio, matrice bugnata per l’alloggiamento delle serpentine, massetto per pavimenti, rivestimenti personalizzati.

Vista dell’atrio d’ingresso

Vista dell’atrio d’ingressoDegli Esposti Architetti disegna un complesso che a un primo sguardo appare semplice e lineare ma, a un’analisi più attenta, rileva tutta la sua complessità compositiva.

Nei suoi prospetti si sedimentano vari piani di lettura che riemergono a seconda della sensi­bilità dell’osservatore. Alcuni colgono il recupero quasi filologico della tradizione, altri la sperimentazione formale e costruttiva.

In ogni caso, anche solo istintivamente, si comprende che Eurinome è un progetto colto, frutto di grande perizia professionale.

Pianta piano terra
Pianta piano terra

di Ilaria Bizzo e Stefano Cornacchini

Degli Esposti Architetti

Casa Eurinome è costruita in un lotto trapezoidale lungo via Piero della Francesca, in un’area urbana dove la suddivisione parcellare segue, ad accezione dell’affaccio sulla via, l’appena divergente giacitura di Corso Sempione.

La casa è una manica a corpo doppio: la campata di 5 piani affacciata sulla via segue la sua giacitura, la campata interna di 7 piani segue le parcelle fondiarie. Il mancato allineamento è articolato dal corridoio comune di distribuzione, stretto tra le due campate.

Degli Esposti Architetti
Degli Esposti Architetti

Con memoria della tafuriana sprezzatura, la regolarità geometrica dei vani degli appartamenti è assicurata, confinando l’irregolarità nello spazio centrale di ser vizio. Le stanze su strada arretrano rispetto al filo della cortina, lasciando spazio a logge schermate da un diaframma di setti proporzionati in prospettiva anamorfica, che si allunga in balconi celanti un piccolo patio, come in noti precedenti di case milanesi: si pensi a Terragni e Lingeri.

Essendo preclusa, dal ridotto calibro della pubblica via, l’agevole visione frontale della casa, la facciata su strada è disegnata privilegiando un punto di vista di scorcio: setti e intercolumni del diaframma sono disegnati in modo da farli apparire, da un punto di vista specifico, posizionato più verso il centro città, di uguale dimensione ed equidistanti.

Un secondo ordine costituito da un telaietto metallico di sezione quadrata (lato 6 cm), omaggio alle case di Guglielmo Mozzoni, media il rapporto tra la massa dell’edificio e il cielo.

La scheda

Committente: Villa Petrogalli srl
Progetto: Degli Esposti Architetti, Lorenzo Degli Esposti e Paolo Lazza
Strutture: Fabio Maria Beretta
Impianti elettrici: Stefano Papetti
Impianti meccanici e acustica: Massimiliano Poletti
Impresa edile: Gregori & Lochis snc
Info: www.dearchitetti.it
Realizzazione: 2021- 2024
Foto: ©Maurizio Montagna

Lascia una risposta

L'indirizzo email non verrà pubblicato.