Architettura sincera: ristrutturare un casale tra vincoli e materiali originali

Vista dalla strada | Vista della facciata del corpo principale | Bow-window

Albert Einstein, tra i suoi studi, argomen­tava di gradi di libertà e vincoli per de­scrivere lo stato di un sistema e le sue possibilità di movimento.

Sulla questione aveva un suo punto di vista molto particolare che arrivava a sintetizzare nel seguente aforisma (uno fra le centinaia che gli vengono attribuiti): Al maggior numero di vincoli corrisponde il massimo grado di libertà.

Sembra un paradosso ma questo principio si applica perfettamente, a nostro avviso, anche al mon­do della produzione artistica, e creativa in genere, che sembrerebbe fuggire dal concetto stesso di limite alla ricerca della più totale indipendenza di espressione.

Studio RigonSimonetti Bow-window dall'interno
Studio RigonSimonetti | Bow-window dall’interno

A riprova di questa tesi analizziamo l’approccio dello studio RigonSimonetti che s’inserisce perfettamente in questo binario.

I due professionisti veneti alla stra­da semplice e rettilinea del tabula rasa preferiscono quella accidentata e tortuosa del confronto con il costruito.

Nel caso in esame ci troviamo nella cam­pagna vicentina dove in un aggregato di casali, noto come casa dei tigli, si trova una porzione destinata, originariamente, a magazzino.

Vincoli come opportunità

Il complesso è stato realizzato a fine ‘800 ed ampliato negli anni ‘50 del secolo scorso. Francesco e Margheri­ta non prendono nemmeno in considerazione l’opzione di demolire e ricostruire il casale, sebbene fosse privo di interesse storico, e preferiscono cimentarsi nella sfida di allentare la rigidità tipologica e costruttiva di un edificio in muratura, realizzato con materiali di modesta qualità.

Scartano la semplificazione del foglio bianco e ricercano il difficile equilibrio tra il mantenere intatto il sapore di un edificio nato per fini produttivi e la necessità di inserirvi la spazialità e le dotazioni di una residenza contemporanea.

Quindi, in sintesi, sperimentano i vincoli del costruito alla ricerca di una nuova libertà d’uso.

Studio RigonSimonetti vista della sala polifunzionale
Studio RigonSimonetti | Vista della sala polifunzionale

Connessione e ridefinizione spaziale

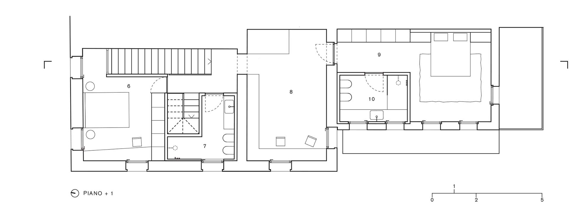
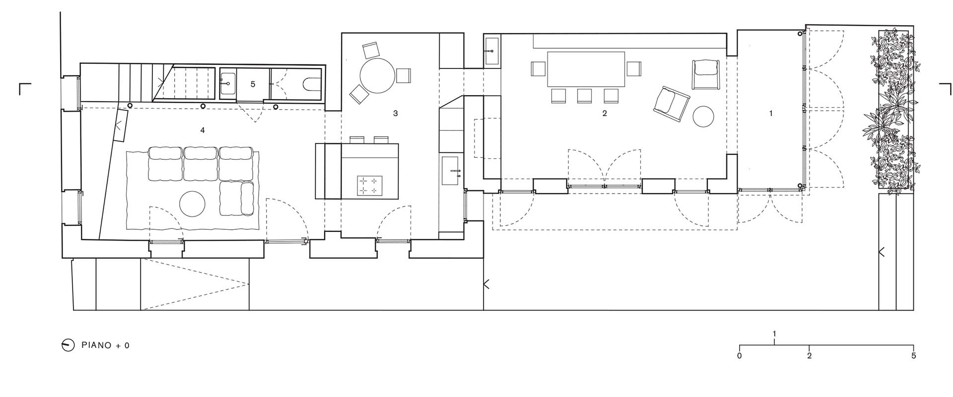
La porzione di casale, oggetto del presente interven­to, è la giustapposizione di un rettangolo di sezione maggiore su cui s’innesta un secondo di dimensioni più ristrette. Internamente presenta sei ampi locali abitabili, distribuiti su due piani.

La prima azione che attuano i progettisti sono delle piccole e mirate demolizioni per introdurre nuove connessioni fra i volumi originari rendendoli più permeabili.

Una delle aperture preesistenti, posta sul perimetro in uno dei due lati corti, viene rimodulata per rendere possibile un ampliamento del piano terra, sia visivo sia fisi­co, creando una connessione diretta fra interno ed esterno. Il nuovo elemento di passaggio è una sorta di bow-window che abbraccia la testata e il lato lungo del corpo minore.

L’involucro di questa addizione viene caratterizzato da un rivestimento in pannelli ciechi in compensato di okuomé integrato con ampi infissi.

La pannellatura viene protetta, dall’azione diretta del sole e dal dilavamento delle piogge, da una pensilina che ha uno sporto più marcato sul lato lungo, colmando in parte lo scarto fra i due corpi di fabbrica, e solo accennato sul corto.

Studio RigonSimonetti sezione longitudinale
Studio RigonSimonetti | Sezione longitudinale

Materiali e finiture autenticità costruttiva

La seconda strategia, applicata per la trasformazione contemporanea del casale, prevede l’introduzione, nel volume murario primigenio, di quattro scatole che integrano: il nuovo elemento di risalita, i nuovi bagni, il mobile cucina e diversi vani contenitori.

Anche in questo caso i nuovi elementi vengono realizzati in pan­nelli di compensato multistrato ma viene modificata l’essenza preferendo il pino che risulta più adatto, con le proprie venature lunghe e bionde, per rischiarare gli ambienti interni.

Il resto degli arredi, alcune men­sole, panche, piani di appoggio e un lavabo, vengono realizzati in calcestruzzo lasciato a vista. Anche qui ritroviamo il richiamo al legno in quanto le casseforme utilizzate per contenere i getti hanno impresso sulla superficie la propria matrice venata rendendola pia­cevolmente materica e calda al tatto.

I pavimenti del piano terra sono realizzati con una delicata palladiana, con inerti tondeggianti di pezzatura medio/piccola e un fondo in malta extra-chiara. Al piano superiore troviamo invece un pavimento industriale in doghe, molto allungate, in essenza di rovere

L’involucro murario, sia in facciata sia nei paramenti interni, viene trattato con intonaci a base di calce. La superficie viene lasciata leggermente scabra per rimar­care, anche in questo caso, la fisicità dell’elemento.

Il corpo maggiore risulta leggermente paglierino, quello minore con una colorazione più fredda, entrambe le tonalità si accordano bene alle parti in legno di okuo­mé. Nella fase cantieristica si è scelto di valorizzare alcuni setti interni lasciando a vista il laterizio.

Le tessiture di mattoni sono state pulite con una leggera sabbiatura, le lacune risarcite con elementi di recupe­ro ed i giunti ristuccati a malta di calce.

Stessa cura è stata riservata alla struttura dei solai interpiano. Le travi, in legno di conifera, sono state mantenute quasi integralmente, solo gli elementi non più sicuri sono stati sostituiti.

Le superfici pulite dalla leggera abrasione sono state trattate con impregnanti, anti xilofagi e anti fungini, non tonalizzanti trasparenti. Il tavolato superiore, troppo ammalorato, è invece completamente nuovo.

Francesco Rigon e Margherita Simonetti affrontano l’architettura in modo sincero, i materiali ci ven­gono mostrati per quello che sono, senza finiture inutili. Il legno, il calcestruzzo, la muratura, la calce si presentano nella loro fisicità arricchiti da quelli che ci hanno insegnato a nascondere: i loro magnifici difetti.

di Ilaria Bizzo e Stefano Cornacchini

Margherita Simonetti e Francesco Rigon
Margherita Simonetti e Francesco Rigon

Margherita Simonetti e Francesco Rigon | Studio RigonSimonetti

Casa dei tigli è il risultato di un progetto che recupera e reinterpreta un edificio residenziale di fine ‘800 e un attiguo ampliamento degli anni ‘50 collocati ai margini di un piccolo nucleo storico a nord di Vicenza.

La convinzione nella possibilità di una trasformazione di questo tipo di strutture che non porti alla perdita del sapore che appartiene alla materia storica ha guidato fin dall’inizio l’impostazione generale del progetto.

Il progetto si compone di una serie di interventi puntuali sulle strutture preesistenti finalizzati a incrementare la permeabilità tra i singoli ambienti dell’abitazione e tra gli spazi interni ed esterni, come nel caso della trasformazione del piano terra della porzione più recente in un’unica stanza polifunzionale che vuol essere anche una loggia.

Attraverso un sistema di serramenti in legno apribili verso l’esterno questo spazio si apre completamente verso il giardino, eliminando quasi integralmente il confine tra spazio interno ed esterno.

I materiali svolgono poi un ruolo fondamentale nel recupero dell’edificio: le finiture a calce, contraddistinte dai segni del processo artigianale sotteso alla loro realizzazione, insieme alle antiche murature in laterizio, descrivono le pareti più antiche della casa, riproponendo o mantenendo la scabra matericità delle superfici segnate dal tempo.

Gli innesti contemporanei sono evidenziati dalla presenza del legno multistrato di pino. Il recupero di questo edificio vuole veicolare un approccio sostenibile basato sulla riduzione delle sostituzioni della materia storica e sulla sua conservazione, che impari ad apprezzarne i difetti, le incongruenze, le mancanze e i segni che nel tempo vi si sono depositati.

La scheda

Committente: Nicola Frazza + Alessandra Lovisetto
Progetto: RigonSimonetti architetti
Strutture: ing. Stefania Nicoletti
Impianti elettrici: per. ind. Paolo Dalle Fusine
Impianti meccanici: per. ind. Manuele Pettenon
Impresa edile: general contract Costruzioni srls
Realizzazione: progetto 2021 – cantiere 2022- 2024
Fotografie: ©Alberto Sinigaglia

Lascia una risposta

L'indirizzo email non verrà pubblicato.